top of page

No.53
二階から発見、
私だけの海。
【売買or賃貸希望】

価格
売却 300万円
賃貸2万円/月
場所
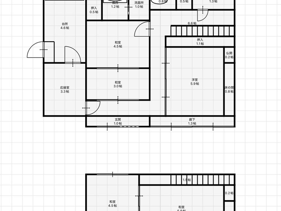
中村
構造
木造二階
建築時期
昭和48年 築52年
空き家に
なった時期
令和7年8月
電気
引き込み済
風呂
ガス
水道
上水有り、下水無し
トイレ
くみ取り
特記事項
・北側が漏電している可能性があり、二階の部屋の電気がつかない状態です。
・賃貸で入居される場合は、こちらで電気会社に相談、対応可能です。
・庭有り(庭や畑も広大なので、使いたい場合は応相談で対応可能。)
・現在は手入れができておらず、海が見えていない
お引越しまでの流れ
01
お問い合わせ
フォームよりお問い合わせください。
02
書類提出
必要書類をご記入の上、小値賀町役場にご提出ください。
03
契約
空き家のオーナー様と交渉後、ご契約を結びます。
04
お引越し
島暮らしをお楽しみください。
\お気軽に無料相談/
bottom of page















